https://condoy.com/wp-content/uploads/2025/05/21-23-Franklin-Ave-Toronto-ON-Building-Photo-10-LargeHighDefinition.jpg

Exceptional Development Opportunity in North York – 21-23 Franklin Avenue

21-23 Franklin Avenue, Toronto, ON M2N 1B7 Prime Location for Residential or Mid-Rise Development Located just steps from the bustling Yonge & Sheppard intersection, 21-23 Franklin Avenue offers a rare chance to develop in one of Toronto’s most sought-after neighborhoods. This 0.25-acre double lot is ideally positioned near major transit hubs, shopping centers, and residential […]

Register below to secure your unit

  • Resale

  • Commercial

  • 10890 Sqft
Last Update : 10 October 2025

21-23 Franklin Avenue, Toronto, ON M2N 1B7

Prime Location for Residential or Mid-Rise Development

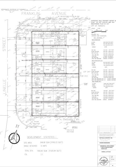
Located just steps from the bustling Yonge & Sheppard intersection, 21-23 Franklin Avenue offers a rare chance to develop in one of Toronto's most sought-after neighborhoods. This 0.25-acre double lot is ideally positioned near major transit hubs, shopping centers, and residential developments, making it a prime candidate for various residential projects.


Property Highlights

  • Lot Size: 10,890 sq ft (0.25 acres)

  • Zoning: CR (Commercial Residential)

  • Development Approvals: OMB-approved for six freehold single-family lots

  • Potential Uses: Multi-family units, senior housing, or mid-rise development

  • Location Advantages: Situated near Yonge & Sheppard; close to subway stations and major highways

  • Neighborhood: Surrounded by major condominiums, shops, and amenities


Traffic Data is promising ;

The location at Yonge and Highway 401 is highly strategic, with an average of 378,500 vehicles passing through North York daily

This high traffic volume significantly increases the visibility and potential usage of the charging stations, making the investment even more attractive.

The adjacent 8-storey building features a sign positioned around the 7th floor (over 60 feet high), offering unobstructed visibility from both Yonge Street and Highway 401. There are no trees or seasonal obstructions—it remains fully visible year-round.

This is one of North York’s most high-traffic intersections, with an average of 378,500 vehicles passing daily. Capturing even 10% of that audience means over 37,000 daily impressions, delivering exceptional exposure and marketing value.

If we position the sign on the southern boundaries which wont effect a future development , it can stay for good.


Investment Overview

This property presents a versatile development opportunity in a high-demand area of Toronto. With OMB approval for six freehold single-family lots, developers can proceed with a low-rise residential project. Alternatively, there's potential for a mid-rise development, subject to the standard approval process, to match neighboring properties with a 3.23 times coverage ratio.

The strategic location near Yonge & Sheppard ensures excellent connectivity and access to a wide range of amenities, making it an attractive option for future residents.

Register Now

   

300 Richmond St W #300, Toronto, ON M5V 1X2

   

inquiries@Condoy.com

  

(416) 599-9599

We are independent realtors® with Home leader Realty Inc. Brokerage in Toronto. Our team specializes in pre-construction sales and through our developer relationships have access to PLATINUM SALES & TRUE UNIT ALLOCATION in advance of the general REALTOR® and the general public. We do not represent the builder directly.


Register for Exceptional Development Opportunity in North York – 21-23 Franklin Avenue (to get full package)

    Full Name
    Email
    Phone
    Message

    This Month Hot New Projects